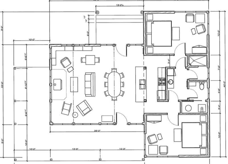
Space Use/Planning
The utilization of space, both in a building and on the site, is one of the most important factors in architectural planning. Our firm has provided master planning and space use analysis services on numerous occasions, giving the client valuable information in helping them determine priority among potential projects.
